481fd1b495b7a17d5939e252f020b161.jpg

The Frankfurt Kitchen

Designed in 1926 by Austrian architect Margarete Schütte-Lihotzky (b.1897 – d.2000), the Frankfurt Kitchen endeavored to make women’s work more efficient, freeing them to pursue economic and personal interests. Some 10,000 units were built in the late 1920s in Frankfurt, Germany.

The Frankfurt Kitchen was designed like a laboratory based on contemporary theories about efficiency and workflow. In planning the design, Schütte-Lihotzky studied train dining cars and ship galleys. She also conducted time-motion studies and interviews with housewives to inform her design.

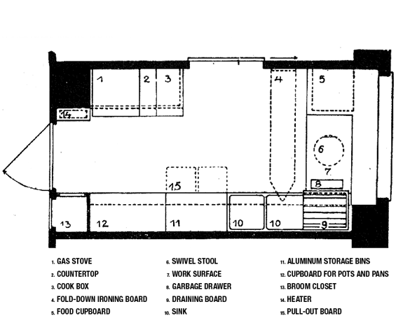
Scholars consider the Frankfurt Kitchen to be a revolutionary approach to domestic architecture. Mia (the Minneapolis Institute of Art) houses one of two original Frankfurt Kitchens in the United States in their permanent collection, described here in detail:

1*p14SeCkrCITu4fJYwOv-Lg.gif

“The Frankfurt Kitchen introduced concepts that still appeal to us today. It is efficient, space-saving, and easy to clean. Prep while sitting on a stool, dry your dishes in the rack above the sink. Baking and cooking staples are kept handy in labeled aluminum bins. Unlike old-style kitchens with dirty, wood-burning stoves, this kitchen has a modern electric stove, a large window for natural light, a movable ceiling light fixture, a pass-through to the dining room, and even a mounted ironing board (for freshly pressed napkins).

Schütte-Lihotzky studied train dining cars and ship galleys as well as the work of kitchen reformers when designing the Frankfurt Kitchens. Mass-produced, they were installed in 10,000 new apartments built to ease Germany’s housing shortage after World War I.”

The Kitchen Dance Film Project

Inspired by the original Frankfurt Kitchen in the permanent collection of Mia (Minneapolis Institute of Art) and with support from the Minnesota Arts Board Artists Initiative grant, Maribeth Romslo produced a conceptual short dance film that explores the multi-dimensional lives of women and their work.

The Frankfurt Kitchen is an example of changing domestic expectations, codifying traditional female labor obligations through efficiency and predictability. Through modern movement, Kitchen Dance examines the complex demands women still face today in pursuit of their own aspirations at home and in the workplace.

What happens in the film?

0*4zuOkXI8PgSdpHAO.jpg

A woman is alone in the kitchen, performing routine, repetitive kitchen duties. She interacts with her physical space in a way that conveys the compact nature of the kitchen. She moves in such as way that it is apparent that the placement of each element of the kitchen’s design is well-planned for maximum efficiency and fluid movement. Six different dancers perform the “role” of the woman.

But what really happens in the film?

The central problem in Kitchen Dance is woman vs. society. The Frankfurt Kitchen was designed to maximize a woman’s efficiency through economy of motion so she could earn income outside the home and pursue other activities outside the kitchen.

However, as with any progress, there is friction and pressure. As women gain more rights (then and now), are they really just adding more to their to-do list of responsibilities? Adding to the number of plates they need to spin? They haven’t been excused from domestic duties in order to pursue careers or employment, the new responsibilities are additive.

Women are still fighting societal and cultural constraints in order to freely pursue their goals and interests. Kitchen Dance conveys the push-pull of this central problem.

More about the project

The Frankfurt Kitchen was designed and built in 1920s Germany, a time of economic growth, but also of political uncertainty. Many of the changes at the time were linked to innovations in science that altered the way people saw the world. As Einstein’s theory of relativity was changing people’s views of time and space. Sigmund Freud was altering their ideas about human behavior. Margarete Schütte-Lihotzky designed the Frankfurt Kitchen during this time of dramatic changes in order to create efficiencies, making time and space for additional opportunities and activities in a woman’s life.

While Kitchen Dance takes place in a Frankfurt Kitchen, the film is not strictly a period piece set in the 1920s/30s. Zoe Henrot, the artistic director of Ballet Co.Laboratory, created modern choreography for the film that draws inspiration from the historic period and also incorporates contemporary movement.

Tom Burgess and the Normandale Community College Theatre Department were commissioned to create a replica set of a Frankfurt Kitchen for the production of the film.

As part of the Minnesota Arts Board Artist Initiative Grant, Kitchen Dance was scheduled to premiere at Mia (Minneapolis Institute of Art) on March 19, 2020. However due to the COVID-19 pandemic, the screening was cancelled.

With the support of a Jerome Foundation finalist grant, the Kitchen Dance was installed outdoors at Franconia Sculpture Garden in July 2021, where visitors can watch the film on their phone by scanning a QR code on the exhibition description.


For me it has always been fundamentally important, in my job and also outside of it, with every bit of influence I have, to contribute to creating a better world than the one that I was born into.
— Margarete Schütte-Lihotzky (1897-2000)
Frankfurt Kitchen designer Margarete Schütte-Lihotzky (1897-2000), photographed in her home by @rigaudpeter.

Frankfurt Kitchen designer Margarete Schütte-Lihotzky (1897-2000), photographed in her home by @rigaudpeter.


Kitchen Dance is a fiscal year 2019 recipient of an Artist Initiative grant from the Minnesota State Arts Board. This activity is made possible by the voters of Minnesota through a grant from the Minnesota State Arts Board, thanks to a legislative appropriation from the arts and cultural heritage fund.